KGV-01

KGV-01


Địa điểm Khu ĐTM Mật Sơn - Tp.Chí Linh - T.Hải Dương
Năm thiết kế / xây dựng 2015
Phạm vi công việc Thiết kế kiến trúc
Chủ đầu tư Gia đình chú Mười
Quy mô 3 tầng
THÔNG TIN CHI TIẾT DỰ ÁN
Thông tin về dự án:
Tổng diện tích lô đất: 300 m2.
Diện tích xây dựng: 124 m2.
Trong đó: 
Tầng 1 gồm: Phòng khách, phòng bếp, phòng ngủ master, wc riêng, wc chung và kho.
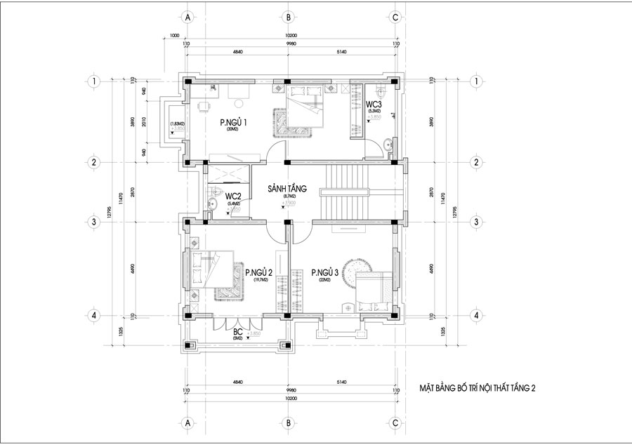
Tầng 2 gồm: Ba phòng ngủ, wc riêng, wc chung.
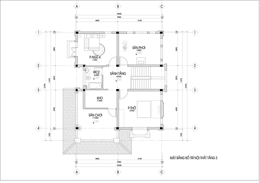
Tầng 3 gồm: Phòng thờ, 1 Phòng ngủ, sân phơi, kho và sân chơi.

biet thu chi linh 1 1

biet thu chi linh 2 1

biet thu chi linh 3 1

biet thu chi linh 1 1
    XEM THÊM HÌNH ẢNH DỰ ÁN
   Đánh giá
Bạn đánh giá thế nào về dự án này?
Hãy click vào hình sao để đánh giá Dự án
 Từ khóa: biệt thự
Bạn đã không sử dụng Site, Bấm vào đây để duy trì trạng thái đăng nhập. Thời gian chờ: 60 giây