THÔNG TIN CHI TIẾT DỰ ÁN
Thông tin về dự án:
Tổng Diện tích xây dựng: 90 m2.
Trong đó:
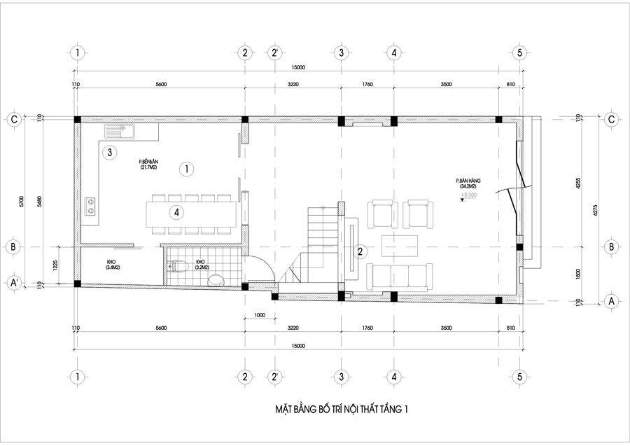
Tầng 1 gồm: Phòng bán hàng, phòng bếp và ăn, kho và wc.
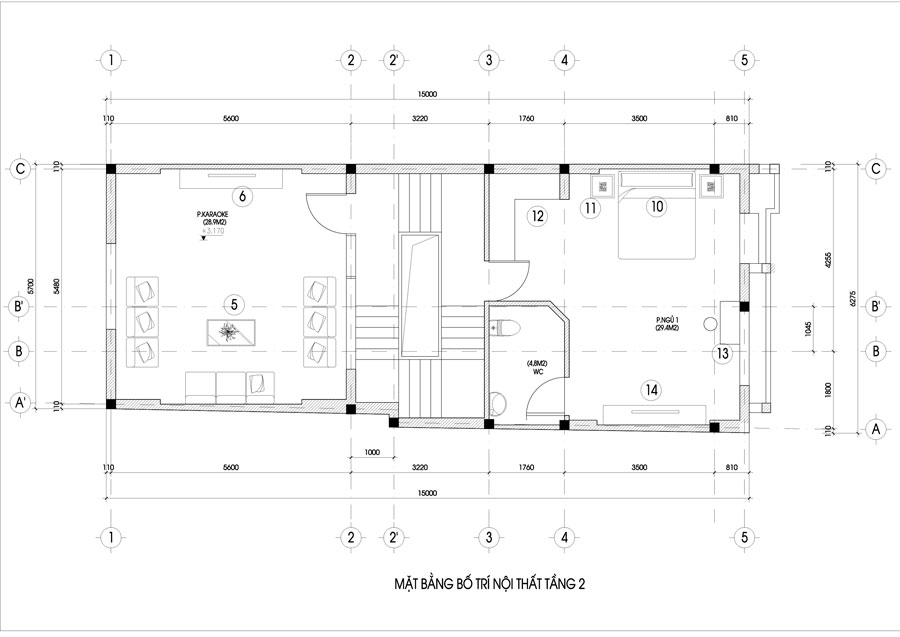
Tầng 2 gồm: Phòng ngủ master, phòng shc - karaoke.
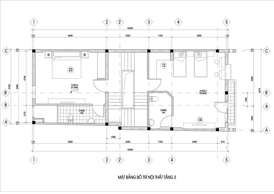
Tầng 3 gồm: 2 phòng ngủ và các wc riêng cho từng phòng.
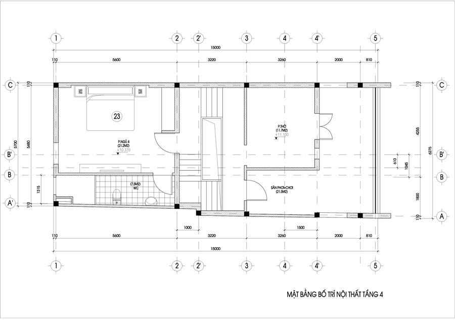
Tầng 4 gồm: 1 phòng ngủ và wc riêng, phòng thờ, sân chơi.
