THÔNG TIN CHI TIẾT DỰ ÁN
Thông tin về dự án:
Diện tích xây dựng: 65.6 m2.
Trong đó:
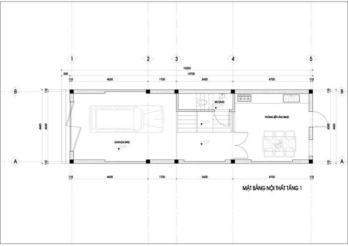
Tầng 1 gồm: Gara, phòng bếp và ăn, wc chung.
Tầng 2 gồm: Phòng ngủ master và wc riêng, phòng khách.
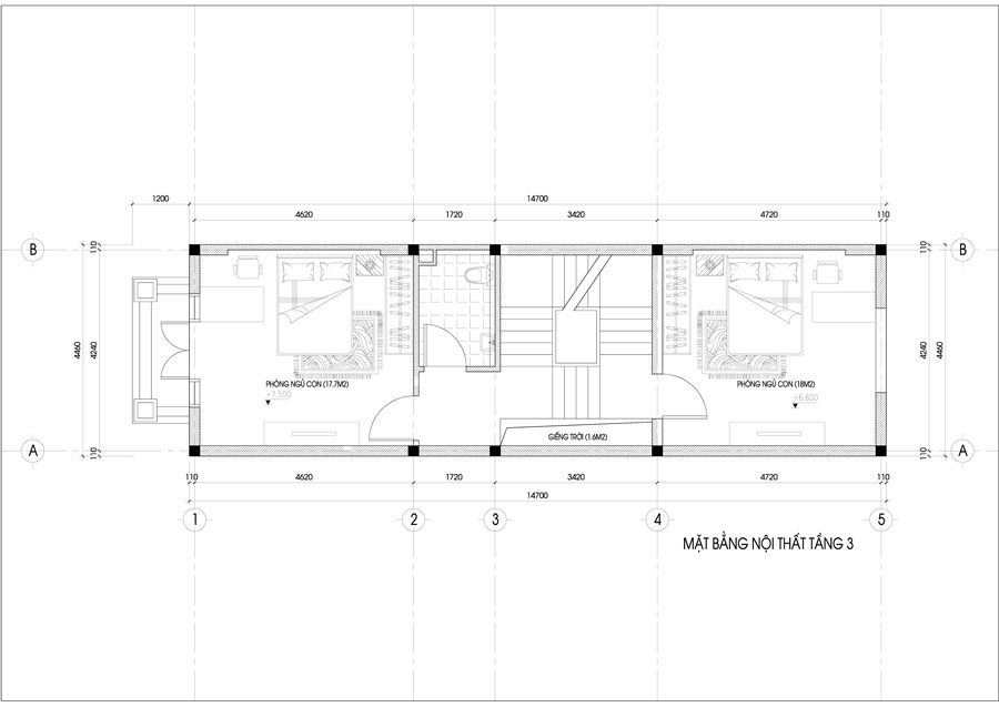
Tầng 3 gồm: 2 phòng ngủ, wc chung.
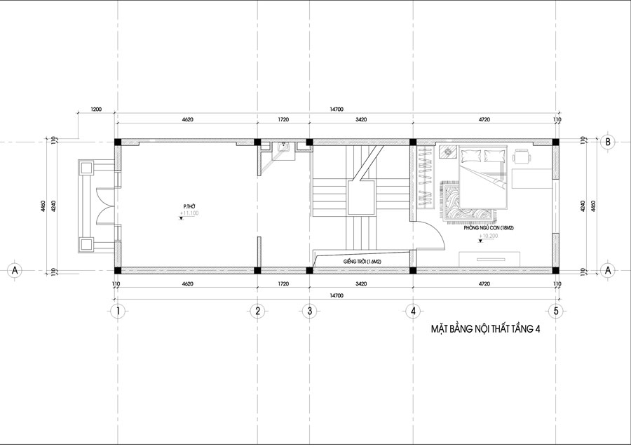
Tầng 4 gồm: Phòng ngủ, phòng thờ.
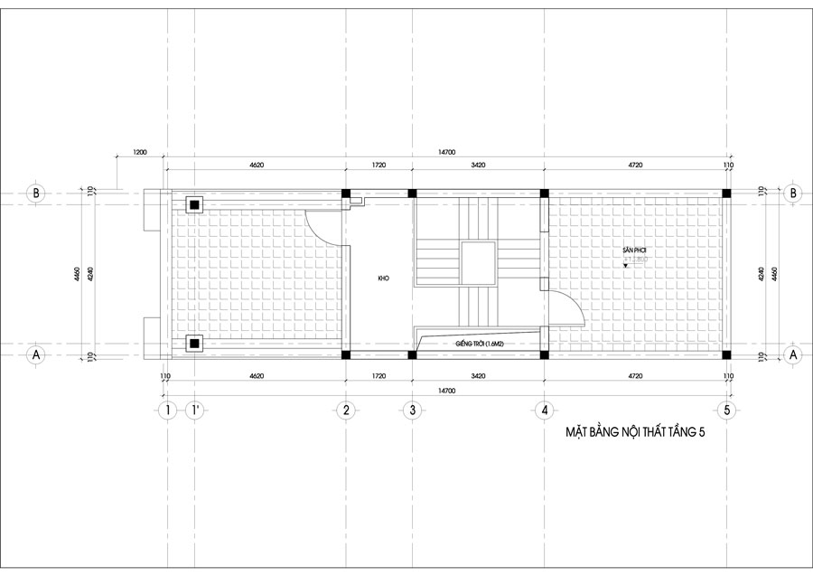
Tầng 5 gồm: Kho, sân chơi và sân phơi.