KGV-07

KGV-07


Địa điểm Khu ĐTM Tuệ Tĩnh - Tp.Hải Dương
Năm thiết kế / xây dựng 2018
Phạm vi công việc Thiết kế kiến trúc
Chủ đầu tư Gia đình cô Huyền
Quy mô 3 tầng
THÔNG TIN CHI TIẾT DỰ ÁN
Thông tin về dự án:
Diện tích lô đất: 134.4 m2.
Diện tích xây dựng: 114.3 m2
Trong đó:
Tầng 1 gồm: Phòng khách, phòng bếp, phòng ngủ, gara, wc chung và 1 sân phụ ( thông tầng ).
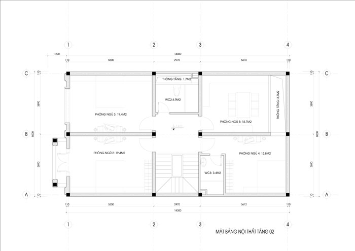
Tầng 2 gồm: 3 phòng ngủ, thư phòng và wc chung.
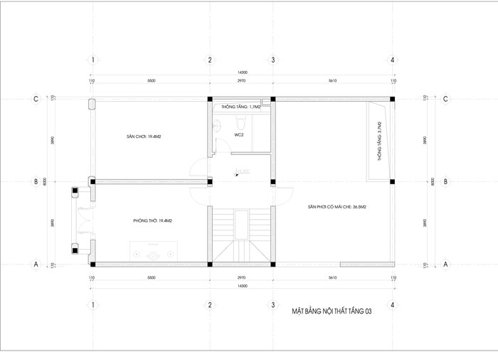
Tầng 3 gồm: Phòng thờ, wc chung, sân chơi, sân phơi.

co huyen tue tinh 1

co huyen tue tinh 2

co huyen tue tinh 3

co huyen 7
    XEM THÊM HÌNH ẢNH DỰ ÁN
   Đánh giá
Bạn đánh giá thế nào về dự án này?
Hãy click vào hình sao để đánh giá Dự án
 Từ khóa: nhà lô phố
Bạn đã không sử dụng Site, Bấm vào đây để duy trì trạng thái đăng nhập. Thời gian chờ: 60 giây