Trình duyệt của bạn đã tắt chức năng hỗ trợ JavaScript.
Website chỉ làm việc khi bạn bật nó trở lại.
Để tham khảo cách bật JavaScript, hãy click chuột
vào đây
!
Không gian Việt - Cuộc sống bắt nguồn từ chính ngôi nhà của bạn.
Trang chủ
Giới thiệu
Chính sách công ty
Tin Tức
Liên hệ
KHÔNG GIAN VIỆT - TƯ VẤN THIẾT KẾ KIẾN TRÚC
thiết kế kiến trúc
Hotline hỗ trợ
0764.82.1111
Thời gian làm việc
07:30 - 17:00
Email liên hệ
khonggianviet.hd@gmail.com
Trang chủ
Giới thiệu
Dự án thiết kế
Thiết kế ngoại thất
Nhà ở gia đình
Công trình công cộng
Thiết kế nội thất
Nhà ở gia đình
Công trình công cộng
Dự án thi công
ngoại thất
nhà ở gia đình
công trình công cộng
nội thất
nhà ở gia đình
công trình công cộng
Kinh doanh đồ nội thất
Đồ nội thất gia đình
Đồ nội thất văn phòng
Bảng giá
Góc tư vấn
Cẩm nang xây dựng
Tin Tức
Tin Tức - Sự kiện
Tuyển dụng
Liên hệ
Menu
Giới thiệu
Dự án thiết kế
Thiết kế ngoại thất
Nhà ở gia đình
Công trình công cộng
Thiết kế nội thất
Nhà ở gia đình
Công trình công cộng
Dự án thi công
ngoại thất
nhà ở gia đình
công trình công cộng
nội thất
nhà ở gia đình
công trình công cộng
Kinh doanh đồ nội thất
Đồ nội thất gia đình
Đồ nội thất văn phòng
Bảng giá
Góc tư vấn
Cẩm nang xây dựng
Tin Tức
Tin Tức - Sự kiện
Tuyển dụng
Liên hệ
Trang chủ
Dự án
Các dự án thiết kế
Thiết kế ngoại thất
Nhà ở gia đình
×
KGV-08
KGV-08
Địa điểm
Đền Kiếp Bạc - Tp.Chí Linh - T.Hải Dương
Năm thiết kế / xây dựng
2018
Phạm vi công việc
Thiết kế kiến trúc
Chủ đầu tư
Gia đình anh Trường
Quy mô
3 tầng
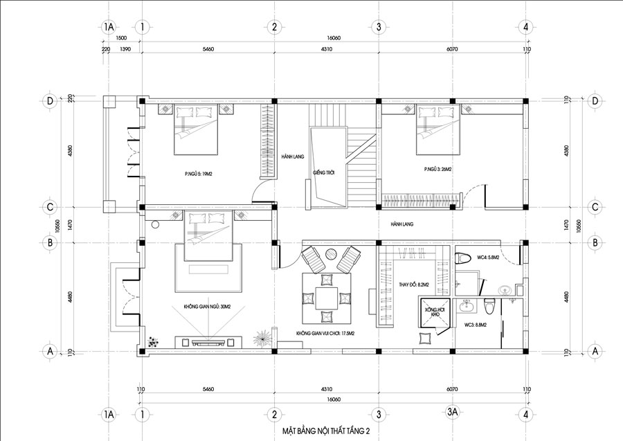
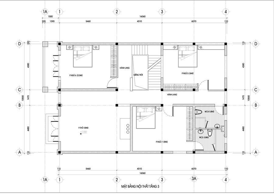
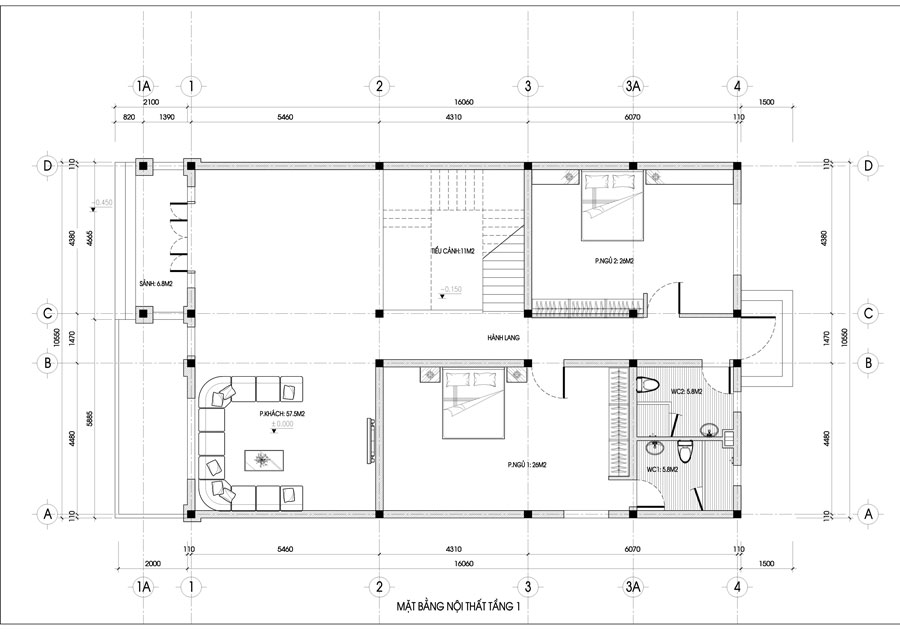
THÔNG TIN CHI TIẾT DỰ ÁN
Thông tin về dự án:
Diện tích xây dựng: 170 m2.
Trong đó:
Tầng 1 gồm: Phòng khách, 2 phòng ngủ, wc riêng và wc chung.
Tầng 2 gồm: Phòng ngủ master, wc riêng, các phòng ngủ con và wc chung.
Tầng 3 gồm: Phòng thờ, các phòng ngủ, wc riêng và wc chung.
XEM THÊM HÌNH ẢNH DỰ ÁN
Đánh giá
Bạn đánh giá thế nào về dự án này?
Hãy click vào hình sao để đánh giá Dự án
Từ khóa:
nhà lô phố
Bạn đã không sử dụng Site,
Bấm vào đây để duy trì trạng thái đăng nhập
. Thời gian chờ:
60
giây