THÔNG TIN CHI TIẾT DỰ ÁN
Thông tin về dự án:
Diện tích xây dựng: 72.5m2
Trong đó:
Tầng 1 gồm: Gara, phòng khách, phòng bếp + ăn, wc chung.
Tầng 2 gồm: các phòng ngủ có wc riêng.
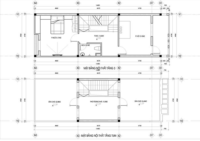
Tầng 3 gồm: Phòng thờ, 1 phòng ngủ, wc chung.
Tầng tum gồm: khu phơi trong nhà, sân phơi, sân chơi
