KGV-24

KGV-24


Địa điểm Chương Dương - Tp.Hải Dương
Năm thiết kế / xây dựng 2019
Phạm vi công việc Thiết kế kiến trúc
Chủ đầu tư Gia đình anh Dũng
Quy mô 2 tầng
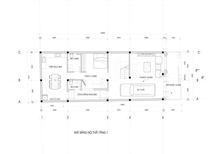
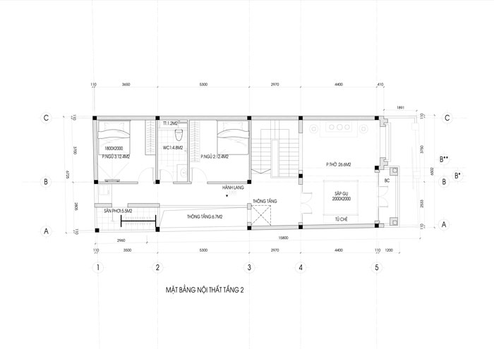
THÔNG TIN CHI TIẾT DỰ ÁN
Thông tin về dự án:
Tổng diện tích lô đất: 123.1m2.
Diện tích xây dựng: 110m2.
Trong đó:
Tầng 1 gồm: để xe, phòng khách, phòng ngủ, phòng bếp, wc chung, wc riêng.
Tầng 2 gồm: Phòng thờ, 2 phòng ngủ, wc chung, sân phơi.

anh dung chuong duong 1

anh dung chuong duong 2

anh dung 24
    XEM THÊM HÌNH ẢNH DỰ ÁN
   Đánh giá
Bạn đánh giá thế nào về dự án này?
Hãy click vào hình sao để đánh giá Dự án
 Từ khóa: nhà lô phố
Bạn đã không sử dụng Site, Bấm vào đây để duy trì trạng thái đăng nhập. Thời gian chờ: 60 giây