KGV-25

KGV-25


Địa điểm Tràng An - T.Ninh Bình
Năm thiết kế / xây dựng 2019
Phạm vi công việc Thiết kế kiến trúc
Chủ đầu tư Gia đình anh Việt
Quy mô 1 tầng
THÔNG TIN CHI TIẾT DỰ ÁN
Thông tin về dự án:
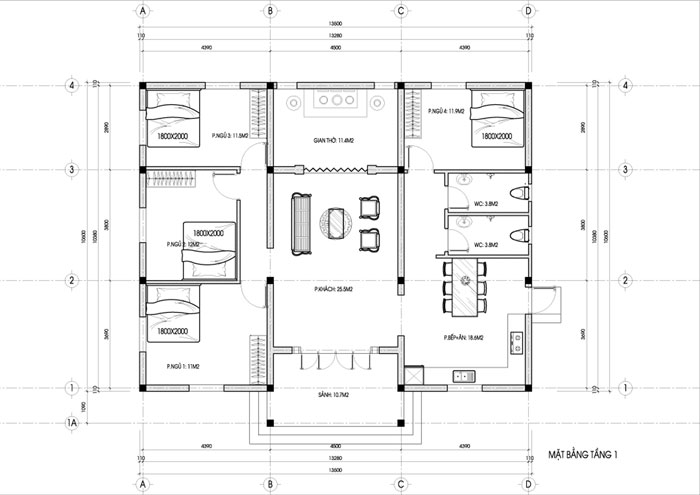
Diện tích xây dựng: 143.1m2.
Trong đó:
Tầng 1 gồm: Phòng khách, không gian thờ cúng, 4 phòng ngủ, phòng bếp+ăn và khu wc chung.


anh viet

anh viet 25
    XEM THÊM HÌNH ẢNH DỰ ÁN
   Đánh giá
Bạn đánh giá thế nào về dự án này?
Hãy click vào hình sao để đánh giá Dự án
 Từ khóa: nhà vườn
Bạn đã không sử dụng Site, Bấm vào đây để duy trì trạng thái đăng nhập. Thời gian chờ: 60 giây