KGV-30

KGV-30


Địa điểm Quán Ngái - H.Gia Lộc - T.Hải Dương
Năm thiết kế / xây dựng 2019
Phạm vi công việc Thiết kế kiến trúc
Chủ đầu tư Gia đình em Trung
Quy mô 3 tầng - tum
THÔNG TIN CHI TIẾT DỰ ÁN
Thông tin về dự án:
Diện tích xây dựng: 70.5m2.
Trong đó:
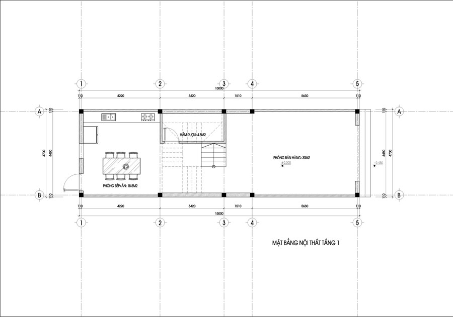
Tầng 1 gồm: Phòng bán hàng, phòng bếp, wc.
Tầng 2 gồm: Phòng khách, các phòng ngủ wc chung.
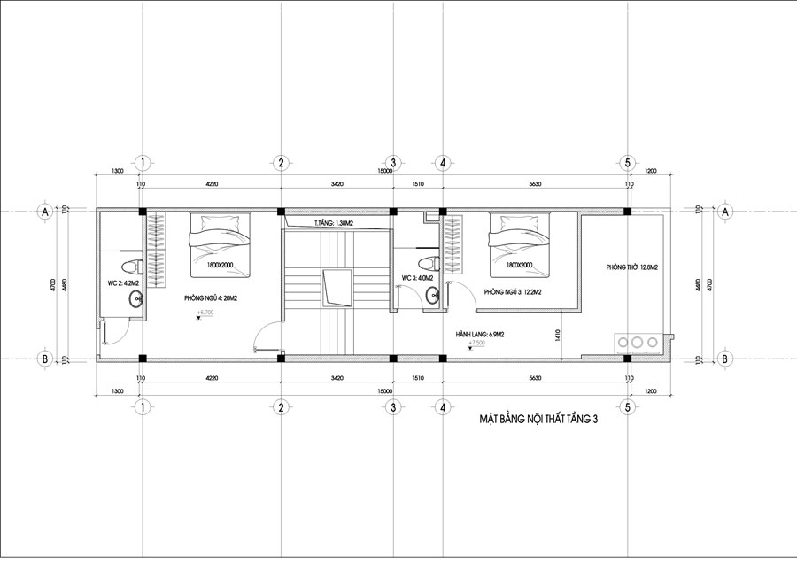
Tầng 3 gồm: Phòng thờ, các phòng ngủ, wc riêng, wc chung.
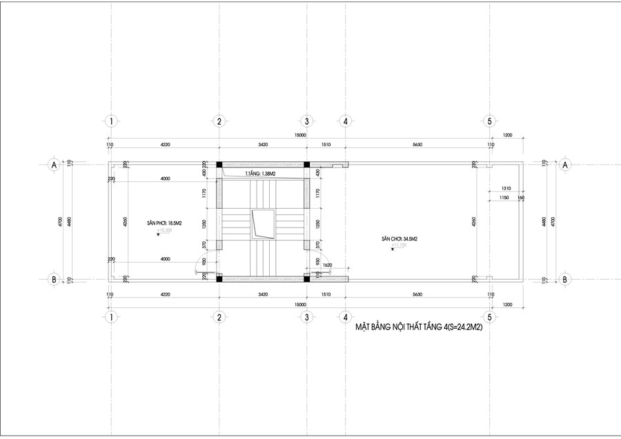
Tầng tum gồm: Tum thang, sân chơi và sân phơi.

trung quan ngai 1 1

trung quan ngai 2 1

trung quan ngai 3 1


trung quan ngai 4 1




em trung 28 1
    XEM THÊM HÌNH ẢNH DỰ ÁN
   Đánh giá
Bạn đánh giá thế nào về dự án này?
Hãy click vào hình sao để đánh giá Dự án
 Từ khóa: nhà lô phố
Bạn đã không sử dụng Site, Bấm vào đây để duy trì trạng thái đăng nhập. Thời gian chờ: 60 giây