KGV-32

KGV-32


Địa điểm Thường tín - Hà Nội
Năm thiết kế / xây dựng 2019
Phạm vi công việc Thiết kế kiến trúc
Chủ đầu tư Gia đình anh Kiên
Quy mô 2 tầng
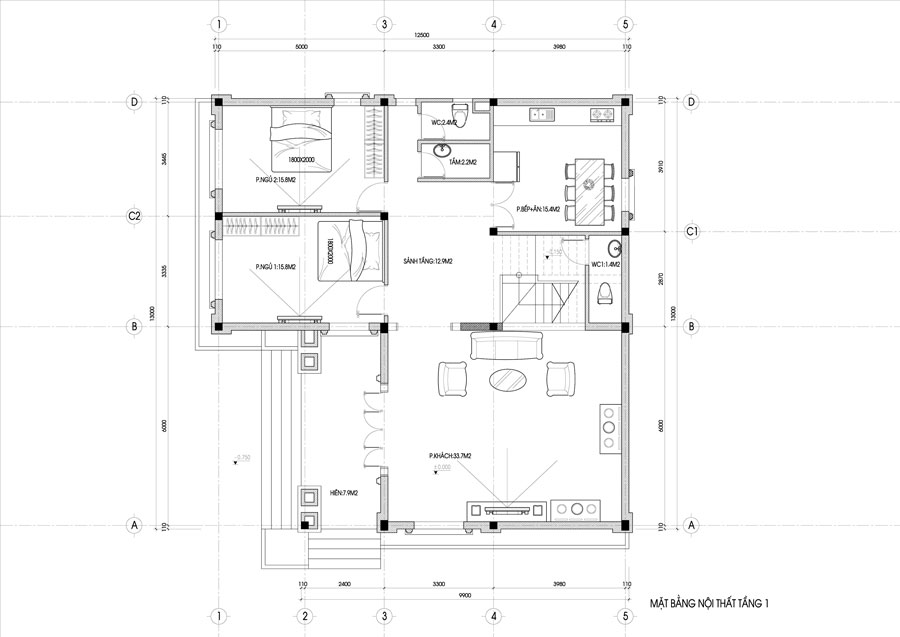
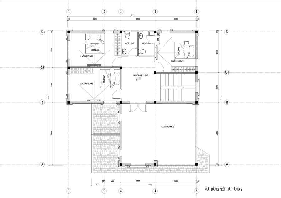
THÔNG TIN CHI TIẾT DỰ ÁN
Thông tin về dự án: 
Diện tích xây dựng: 147m2.
Trong đó: 
Tầng 1 gồm: Phòng khách, 2 phòng ngủ, phòng bếp, các wc chung.
Tầng 2 gồm: 3 phòng ngủ, các wc chung. sân chơi.

anh kien 1 1

anh kien 2 1


web 2a

 
    XEM THÊM HÌNH ẢNH DỰ ÁN
   Đánh giá
Bạn đánh giá thế nào về dự án này?
Hãy click vào hình sao để đánh giá Dự án
Bạn đã không sử dụng Site, Bấm vào đây để duy trì trạng thái đăng nhập. Thời gian chờ: 60 giây