KGV-33

KGV-33


Địa điểm Tp Hải Dương
Năm thiết kế / xây dựng 2019
Phạm vi công việc Thiết kế kiến trúc
Chủ đầu tư Gia đình chú Chiến
Quy mô 2 tầng
THÔNG TIN CHI TIẾT DỰ ÁN
Thông tin về dự án: 
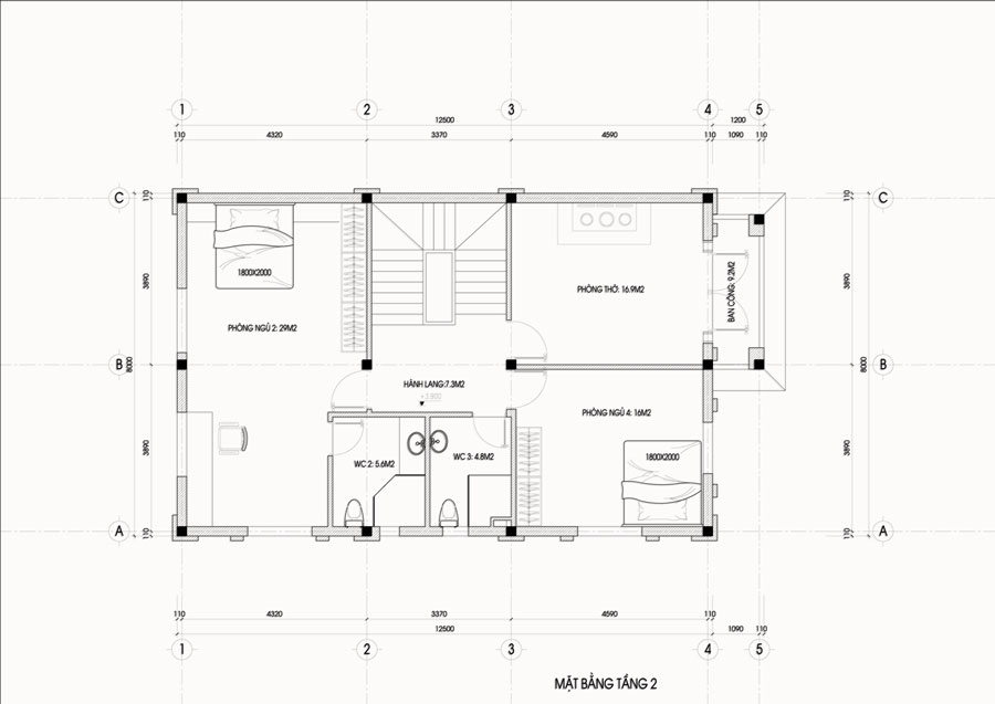
Diện tích xây dựng: 104m2.
Trong đó: 
Tầng 1 gồm: Phòng khách, 1 phòng ngủ, phòng bếp, wc chung.
Tầng 2 gồm: 2 phòng ngủ, wc chung, wc riêng. phòng thờ.

chu chien 1


chu chien 2


chu chien 2 1
    XEM THÊM HÌNH ẢNH DỰ ÁN
   Đánh giá
Bạn đánh giá thế nào về dự án này?
Hãy click vào hình sao để đánh giá Dự án
 Từ khóa: nhà lô phố
Bạn đã không sử dụng Site, Bấm vào đây để duy trì trạng thái đăng nhập. Thời gian chờ: 60 giây