KGV-36

KGV-36


Địa điểm Lương Thế Vinh - tp.Hải Dương
Năm thiết kế / xây dựng 2020
Phạm vi công việc Thiết kế kiến trúc
Chủ đầu tư Gia đình anh Hiếu
Quy mô 3 tầng - tum
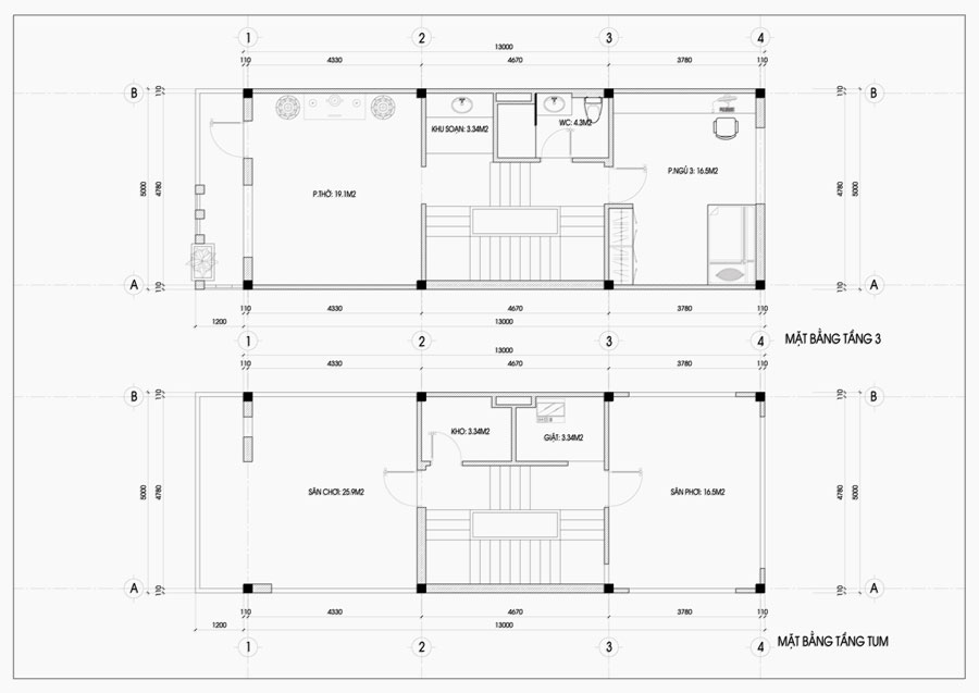
THÔNG TIN CHI TIẾT DỰ ÁN
Thông tin về dự án:
Diện tích xây dựng: 65m2
Trong đó:
Tầng 1 gồm: Phòng khách, phòng bếp wc chung.
Tầng 2 gồm: 2 phòng ngủ, wc chung. 
Tầng 3 gồm: 1 phòng ngủ, 1 phòng thờ.
Tầng tum:  Sân chơi, sân phơi.

hieu t12

hieu t34

hieu 1
    XEM THÊM HÌNH ẢNH DỰ ÁN
   Đánh giá
Bạn đánh giá thế nào về dự án này?
Hãy click vào hình sao để đánh giá Dự án
 Từ khóa: nhà lô phố
Bạn đã không sử dụng Site, Bấm vào đây để duy trì trạng thái đăng nhập. Thời gian chờ: 60 giây