KGV-40

KGV-40


Địa điểm Việt Hòa - Tp.Hải Dương
Năm thiết kế / xây dựng 2020
Phạm vi công việc Thiết kế kiến trúc
Chủ đầu tư Gia đình anh Măng
Quy mô 1 tầng
THÔNG TIN CHI TIẾT DỰ ÁN
Thông tin về dự án:
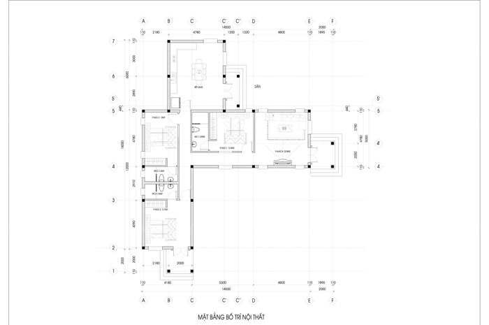
Diện tích xây dựng: 147m2
Trong đó:
Tầng 1 gồm: Phòng khách, 3 phòng ngủ, p.bếp+ăn, các phòng wc

anh mang


anh mang 1


anh mang 2

anh mang 3
    XEM THÊM HÌNH ẢNH DỰ ÁN
   Đánh giá
Bạn đánh giá thế nào về dự án này?
Hãy click vào hình sao để đánh giá Dự án
 Từ khóa: nhà vườn
Bạn đã không sử dụng Site, Bấm vào đây để duy trì trạng thái đăng nhập. Thời gian chờ: 60 giây