KGV-46

KGV-46


Địa điểm Liên Mạc - H.Thanh Hà - T.Hải Dương
Năm thiết kế / xây dựng 2021
Phạm vi công việc Thiết kế kiến trúc
Chủ đầu tư Gia đình chú Toàn
Quy mô 1 Tầng
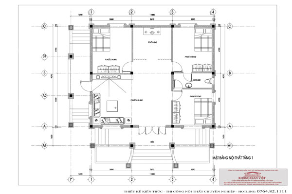
THÔNG TIN CHI TIẾT DỰ ÁN
Thông tin về dự án:
Diện tích xây dựng: 125m2
Trong đó:
Tầng 1 gồm: Phòng khách, 3 phòng ngủ, p.thờ, các phòng wc


mat bang



web 1





web 2




web 3



 
    XEM THÊM HÌNH ẢNH DỰ ÁN
   Đánh giá
Bạn đánh giá thế nào về dự án này?
Hãy click vào hình sao để đánh giá Dự án
Bạn đã không sử dụng Site, Bấm vào đây để duy trì trạng thái đăng nhập. Thời gian chờ: 60 giây