KGV-56

KGV-56


Địa điểm Thị trấn Nam Sách - huyện Nam Sách - tỉnh Hải Dương
Năm thiết kế / xây dựng 2022/2023
Phạm vi công việc Thiết kế Kiến Trúc
Chủ đầu tư Gia đình anh Hùng
Quy mô 1 Tầng
THÔNG TIN CHI TIẾT DỰ ÁN
Thông tin về dự án:
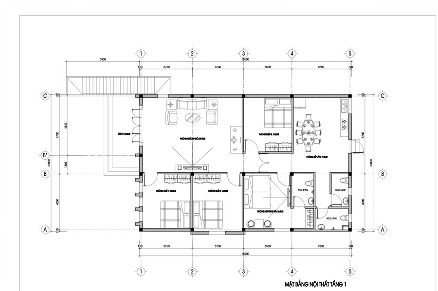
Diện tích xây dựng: 165m2
Trong đó:
Tầng 1 gồm: P.khách + p.thờ, 4 p.ngủ, p.bếp+ăn, phòng wc

mb web


phoi canh web 1
    XEM THÊM HÌNH ẢNH DỰ ÁN
   Đánh giá
Bạn đánh giá thế nào về dự án này?
Hãy click vào hình sao để đánh giá Dự án
Bạn đã không sử dụng Site, Bấm vào đây để duy trì trạng thái đăng nhập. Thời gian chờ: 60 giây